Siale - Type B - S6680

K938,100 Edai Town, Port Moresby NCD
For Sale
Property Type : House

Siale - Type B - S6680

Edai Town, Port Moresby NCD
K938,100

For Sale
/
Property Type : House

4 Beds

3 Baths

0 sqm

2 garage

Description

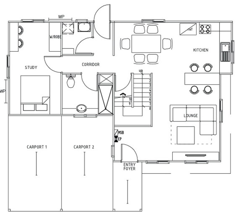
With very cottage-like features is this modern two storey home. The house is placed out to have a sizeable lounge, roomy ktichen, laundry and backdoor that opens to the back lawn.

Additional structures consist of two storage compartments along the corridor (under the staircase/near the extra room), toilet and shower and an extra room at the far end. This room is easily transformed into either a bedroom or a study room.

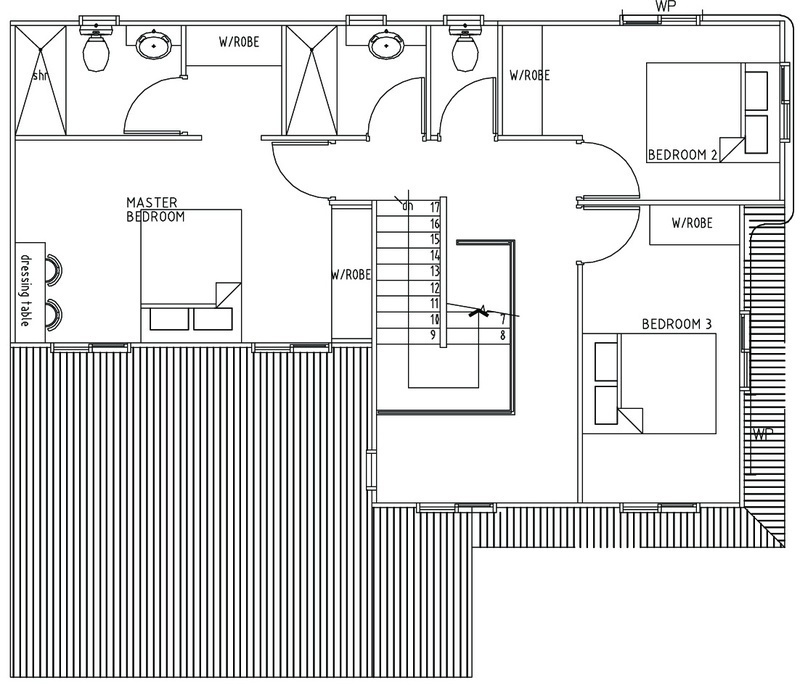
The top section of the house is laid out in such a way where the master bedroom has an en suite and a walk-in wardrobe. There is also a separate toilet and shower, the other two bedrooms and a sun room which overlooks the carport. The house has ceiling fans only. There is liberal parking for two cars.

Contact us to arrange an inspection today.

Amenities

Balcony/Patio/Terrace
Built-ins
Formal Lounge
Internal Laundry
Modern Bathroom
Modern Kitchen
Entertainment Area
Level Lawn
Safe
Security Lights
Close to Shops
Near Waterfront
Quiet Location
Gated Community

Agent

Emmanuel Paiva
epaiva@siule.com.pg + (675) 311 2121 / + (675) 7612 3934

Mortgage Calculator

* Calculations here are to be used as a guide. Please consult a financial professional