S6679 - A木芙蓉 - BAH

K660,600 Edai Town, Port Moresby NCD
出售
房产类型 : 别墅

S6679 - A木芙蓉 - BAH

Edai Town, Port Moresby NCD
K660,600

出售
/
房产类型 : House

3 Beds

2 Baths

0 sqm

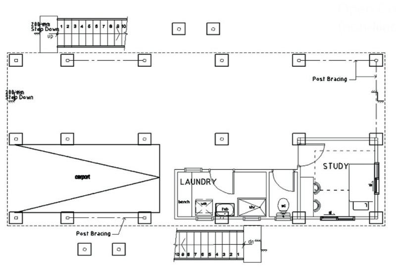
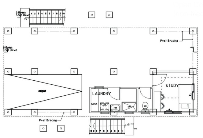
3 车库

描述

这是一幢传统的高级住宅,有三间卧室和一间额外的房间,可以转换成卧室或书房。楼上设有共用卫生间和淋浴间,宽敞的厨房,宽敞的用餐区和宽敞的休息区。阳台有两个出口,一个玻璃推拉门和一个玻璃开/关门。为方便起见,房子有一个后门,一个短的着陆和一个通往后院的楼梯。这所房子只有吊扇。作为额外的奖励,楼下还有额外的卫生间和淋浴,洗衣房和额外的房间(卧室/书房)。停车场拥有充足的停车位,可停放一辆车。

设施

浴室
正规的休息室
附带家具
现代化浴室
现代化厨房
安全
保安灯
远离喧嚣
保安车库
交通便利
临近水景
全天候安保
Gated Community

经纪人

Emmanuel Paiva
epaiva@siule.com.pg + (675) 311 2121 / + (675) 7612 3934

按揭计算器

* Calculations here are to be used as a guide. Please consult a financial professional